Naujausios
Kaip mažas butas tampa erdvus ir funkcionalus
Butai su maža virtuve, siauru koridoriumi, ankšta vonia ir tualetu šiandien daugelio gyventojų netenkina ir jie stengiasi sušiuolaikinti savo gyvenamąją erdvę. Kaip išplėsti erdvę mažame bute, pataria architektė Ilona Vaznonienė.
Jurgita JUŠKEVIČIENĖ
jurgita@skrastas.lt
Svarbiausia įvertinti savo poreikius
Norint kuo naudingiau išnaudoti gyvenamąją erdvę, pasak architektės, reikėtų įvertinti esamus ir ateities poreikius. Kitas žingsnis – išsiaiškinti, kokie patalpų pakeitimai įmanomi ir įstatymais leistini. Ne mažiau svarbu – pinigų ir laiko sąnaudos. Jų didesniems pokyčiams reikės daug, todėl vertėtų pamąstyti, ar investicija atsipirks.
I. Vaznonienė pataria pasvarstyti, ar reikalinga didelė virtuvė, o gal užteks mažos su būtiniausiais buitiniais prietaisais, ar būtina atskira darbo vieta, ar ilgam įsikuriate šiuose namuose, jei ne, galbūt neverta daryti didelių pakeitimų.
Virtuvė ir svetainė
Ir individualioje statyboje, ir rekonstruojant senus butus vyrauja tendencija jungti virtuvę su svetaine, taip sukuriama erdvesnė gyvenamoji patalpa, o virtuvė nebeatrodo tokia ankšta. Pasak I. Vaznonienės, praeityje liko arkos, kaip virtuvės ir svetainės jungimo būdas.
Įrengiant virtuvę reikia pamąstyti ir apie valgymo vietą. Baras, jeigu nėra vietos atsisėsti pavalgyti, geras sprendimas, tačiau vargu ar jis tiks šeimai su vaikais. Jeigu visgi nuspręsite statyti barą, architektė pataria kaip jo atramą statyti spintelę. Turėsite ne tik vietą pavalgyti, bet ir daiktams susidėti.
Įrengiant virtuvę architektė pataria atsižvelgti į pirkimo įpročius. Jeigu perkate savaitei ar ilgiau, reikės pakankamai vietos maisto atsargoms sudėti.
Architektė sako, kad bene svarbiausia gyvenamosios erdvės paskirtis – suteikti poilsį. Net ir ankštoje erdvėje reikėtų atrasti vietos, kurioje būtų patogu prisėsti ir pailsėti. I. Vaznonienė pataria neapkrauti šios erdvės daiktais: baldais, suvenyrais ir panašiais.
Kartais užsakovai nori svetainę įkurdinti šiaurinėje pusėje, nes už lango gražus vaizdas. Tačiau architektė stengiasi atkalbėti nuo tokio sumanymo, nes svetainė dėl saulės šviesos stokos nebus jauki.
Kampelis darbui
Ar pasiseks savo mažame bute integruoti darbo vietą, labiausiai priklauso nuo darbo pobūdžio ir nuo įrangos.
Rašomajam stalui atrasti kampelį neturėtų būti sunku. Darbo vietą galima įkurdinti miegamajame, virtuvės ar svetainės zonoje, netgi įstiklintame balkone.
Miegamasis
Jeigu tik yra galimybė, vertėtų pamąstyti apie atskirą miegamąjį. Net ir maža patalpa gali būti jauki ir suteikti privatumo pojūtį.
Jeigu mažučiame miegamajame netelpa spinta, ją galima įrengti kitame kambaryje arba koridoriuje. Jei užsisakysite sieninę spintą, jos skyrius ir lentynas suplanavę pagal turimus drabužius ir jų kiekį, kur kas tinkamiau išnaudosite erdvę.
Vaikų kambarys
Kol vaikai dar visai maži, jiems užtenka lovelės tėvų miegamojo kampe, tačiau paaugusiems reikia kur kas daugiau erdvės. Architektė pataria vaikams skirti kuo didesnę patalpą, nes jų daiktams ir veiklai reikia daug erdvės. Vaikų kambarys – tai ir miegamasis, ir žaidimų kambarys, ir namų darbų ruošimo vieta, ir netgi sporto aikštelė.
Vonia ir tualetas
Senos statybos butuose voniai ir tualetui skirta labai mažai erdvės. Neretai joje netelpa skalbyklė, vos pakanka vietos apsisukti. Todėl, pasak I. Vaznonienės, butuose stengiamasi sujungti vonią su tualetu, gal net paaukojant dalį koridoriaus, kad ši patalpa taptų erdvesnė ir joje tilptų skalbimo mašina.
Dušas padeda sutaupyti vietos vonios patalpoje, tačiau turintiems mažų vaikų, kurie mėgsta pliuškentis vonioje, toks variantas gali netikti. Jeigu nenorite vonios, galima rinktis dušą su giliu padėklu, kuris vaikams atstos vonelę.
Pavyzdys
Įsigijusios mažą, tarkim, vieno ar dviejų kambarių butą, šeimos kartais virtuvėje įrengia miegamąjį ar vaiko kambarį, o virtuvės zoną perkelia į bendrąjį kambarį. Tiesa, ne visada tokį sumanymą galima įgyvendinti, jeigu inžineriniai tinklai yra toli nuo kambario. Daugiausiai problemų kyla įrengiant kanalizaciją. Mat ilgas kanalizacijos vamzdis gali kimštis.
Perkėlus virtuvę į svetainę, architektė pataria rinktis svetainei artimus virtuvės baldus, kad virtuvės zona būtų kuo mažiau pastebima.
I. Vaznonienė sako gaunanti tokių užsakymų, tačiau nedažnai, nes didesnės rekonstrukcijos, kokybiškesnės medžiagos reikalauja nemažai lėšų ir ne visada atsiperka parduodant butą.
Mažame bute reikia labai gerai apsvarstyti, kokius baldus statysite. Dažnai tenka visus baldus projektuoti individualiai, kad viskas sutilptų, išnaudoti kiekvieną kampelį. Mažame bute architektė nerekomenduoja statyti masyvių baldų, nes jie dar labiau sumažins erdvę.
Mažus butus galima „praplėsti“ optiškai panaudojant veidrodžius. Pakabinti prieš langą jie ne tik pašviesins patalpą, bet ir optiškai ją praplės.
Nors stiklo blokeliai daug kam kelia blogus prisiminimus, tačiau tai labai gera priemonė norint įrengti šviesos neužstojančias pertvaras.
Griauti sienas – tik su leidimu
I. Vaznonienė pataria nepersistengti griaunant sienas. Daugelį žavi didelė erdvė, tačiau neretai ji būna triukšminga, todėl vargina. Taigi sukurti šiek tiek privatumo tiesiog būtina, kad turėtumėte, kur atsipūsti, ramiai paskaityti. Jeigu nenorite sienų, galima įrengti stumdomas pertvaras.
Rekonstrukcijas, pasak architektės, paprasčiau atlikti mūriniuose namuose. Pagal buto planą aiškiai matoma, kuri siena yra atraminė, o kuri – tik pertvara. O štai blokiniuose namuose beveik visos sienos yra atraminės, todėl pakeitimus juose reikia daryti labai atsargiai ir tik pasitvirtinus projektą.
Kartais sumanymų įgyvendinti nepavyksta, nes sienoje, kurią norima griauti, yra inžinerinių kanalų (ventiliacija, vamzdynai ir pan.), kurių negalima pažeisti.
Architektė įspėja, kad visus rekonstrukcijos darbus daugiabučiame name reikia suderinti su namo bendrija, įspėti kaimynus. Be to, rengiant buto kapitalinio remonto projektą, reikia daugiau kaip pusės namo gyventojų sutikimo.
Naujovės sunkiai skinasi kelią
„Mums, architektams, užsakovas, kuris nori naujovių, yra tikras džiaugsmas. Norisi daugiau kūrybinio darbo, tačiau užsakovai dažnai būna labai konservatyvūs, nori to, ką jau matė kitur: pas draugus, kaimynus“, – sako I. Vaznonienė.
Viena iš naujovių, kurių lietuviai dar nelabai įsileidžia į savo namus, – erdvės skaidymas baldais. Pagal individualius užsakymus galima sukurti baldus, kurie iš abiejų pusių turi gražius fasadus. Tokie baldai ne tik funkciškai patogūs, bet ir atskiria erdves.
Jono TAMULIO nuotr.

ARCHITEKTĖ: Ilona Vaznonienė pataria nepersistengti griaunant sienas. Nors didelės erdvės žavi, tačiau ilgainiui jos pradeda varginti.
Jono TAMULIO nuotr.

PATARIMAS: Architektė I. Vaznonienė sako, kad didesnės rekonstrukcijos, kokybiškesnės medžiagos reikalauja nemažai lėšų ir ne visada atsiperka parduodant butą.
Ilonos VAZNONIENĖS iliustracijos

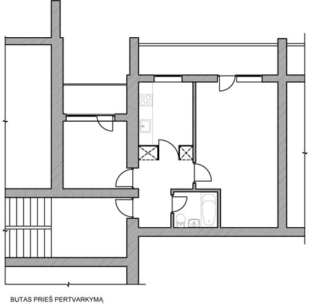
BUTAS: Jaunos trijų asmenų šeimos dviejų kambarių 47 kvadratinių metrų ploto butas prieš kapitalinį remontą.

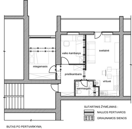
PERTVARKA: Bute po pertvarkymo buvusioje virtuvėje įrengtas vaiko kambarys. Mažasis kambarys (miegamasis) padidintas prijungiant lodžiją. Virtuvės zona įrengta didžiajame kambaryje prie vonios sienos. Vonios patalpa taip pat šiek tiek padidinta kambario sąskaita.